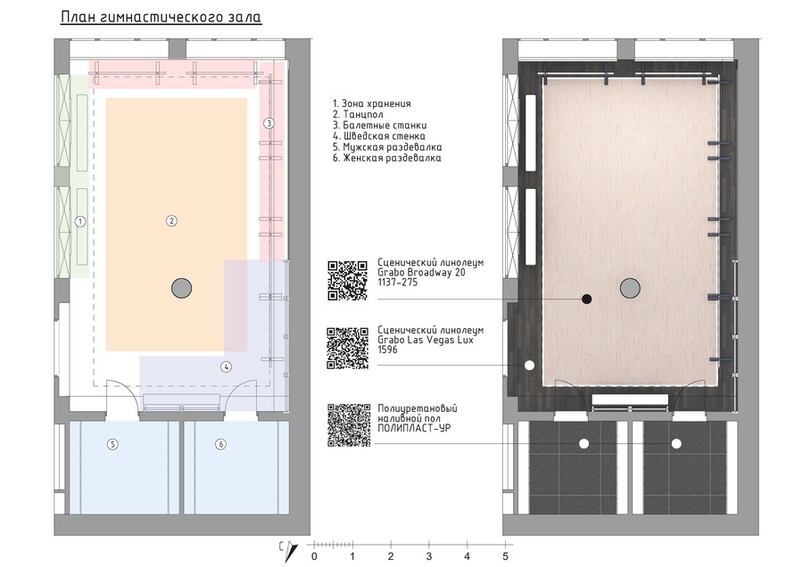
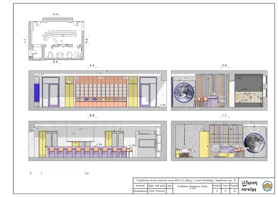
ГБОУ СОШ № 533 Первый логотип школы в виде книги с листом послужил источником вдохновения. Дети — это «чистые листы», которые открыты познанию окружающего мира. В основу концепции вошли стихии природы и обрели каждая свою форму в зависимости от расположения на этаже. Первый этаж символизирует начало, истоки, его элементы — земля, дерево и вода. Все административные помещения были перенесены в коридор первого этажа. Были добавлены акценты в виде сидений и настенное панно «Начало» в виде дерева, предназначенное для размещения фотографий и других самых важных моментов из жизни школы. Это символ связи между поколениями, и оно отлично дополняет административную функцию коридора. Символика второго этажа — огонь как источник тепла, очаг, вокруг которого собирается вся семья. Концепция интерьера третьего этажа символизирует свободу познания и творчества. Рекреация «Остров» погружает учеников в атмосферу сказки, а «Знание» представляет собой мини-библиотеку. Символика 4-го этажа — круг, космос. Рекреация «Фокус» представляет собой зону для просмотра мультфильмов, а «Взлет» является зоной активных игр. Лобановым Е.Ю. и Шамановой С. А. также были разработаны пристройка и инфографика.











































































































































